Tuesday, April 21, 2026

ITI Exam

आईटीआई परीक्षा की बेहतर तैयारी

ITI Exam

आईटीआई परीक्षा की बेहतर तैयारी

ITI CBT Exam Paper

ITI Mechanic Motor Vehicle (MMV) 2nd Year CBT Exam Practice Paper 4

Q1. What is the advantage of mechanical actuated type clutches?
Q2. What is the outcome of starting engine with corroded battery terminals?
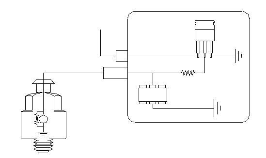
Q3. Which part of electronic fuel injection system controls opening of bypass air passage?
Q4. What is the name of part marked as ‘X’ in the synchronizing action?
Q5. What is the expansion of LED?
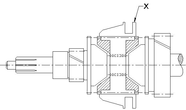
Q6. What is the name of part marked as ‘X’ in the cast wheel?
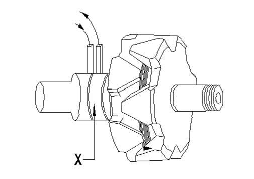
Q7, What is the name of part marked as ‘X’ in the rotor assembly?
Q8. Which light provide effective illumination during snowfall?
Q9. What is the type of brake?
Q10. What is the function of magnetic clutch in air conditioning system?
Q11. What is the name of sensor?
Q12. What is the name of part marked as ‘x’ in the flasher wiring circuit?
Q13. What is the name of angle influence the wheel alignment?
Q14. What is the function of steering system?
Q15. What is the cause for low power generation?
Q16. What does the first unit identify in the scan tool letter code?
Q17. Which type of ECU control the power windows of vehicle?
Q18. Which system provides DC power source for the various units of the vehicles?
Q19. What is the brake pedal free play range permitted while adjusting?
Q20. What is the expansion of ICAT in the vehicle safety system?
Q21. What is the type of defect?
Q22. What is the type of constant velocity joint?
Q23. What is the permitted diffraction angle of double joint?
Q24. Why the brushes are provided with a curvature at the bottom in the starter motor?
Q25. What is the name of angle marked as ‘X’?
Q26. What is the type of leaf spring?
Q27. What is the type of light fitting in the vehicle?
Q28. What causes high oil pressure?
Q29. What is the advantage of multiplex network?
Q30. What is the validity for international driving license?
Q31. What is the possible cause for immobilizer antenna error?
Q32. What is the name of part marked as ‘X’ in the air bag inflator module?
Q33. How the EBD (Electronic Brake Force Distribution) failure indicated to the driver?
Q34. What is the name of angle marked as ‘X’?
Q35. What is the type of drive line?
Q36. What will be the result of worn teeth of ring gear in the starting system?
Q37. What is the reason for poor sound quality of horn?
Q38. What is the function of diodes?
Q39. Where the tyre pressure sensor secured in the wheel assembly?
Q40. What is the possible cause for starter motor not running?
Q41. What is the main cause for wear on one side of tyre?
Q42. What is the effect on engine performance if air leak in the induction system observed?
Q43. What is the boiling point of refrigerant R-134a?
Q44. Where the red colour indicator lamps are provided in the vehicle?
Q45. What is the purpose of condenser in the ignition system?
Q46. Which steering system will provide assistance even when the engine is not running?
Q47. What is the type of suspension?
Q48. What is the name of gauge used to check spark plug gap?
Q49. What is the type of drive?
Q50. Which part of air conditioning system absorbs moisture in the system?
Mechanic Motor Vehicle 2nd Year cbt exam paper 4
You got {{userScore}} out of {{maxScore}} correct
{{title}}
{{image}}
{{content}}
Youtube Click here
Telegram Group Join Now
Whatsapp Group Join Now
Facebook Group Join Now
Instagram Follow
Application Download Now

Leave a Reply

Your email address will not be published. Required fields are marked *